Уголок алюминиевый – одна из разновидностей металлопроката, выпускаемого современной промышленностью. Характеристики, которыми обладает уголок, изготовленный из алюминия, определяют высокий многолетний спрос на данную продукцию, используемую для самых разных целей.
Характеристики уголков из алюминия
Любой металлический уголок – это изделие, поперечное сечение профиля которого напоминает букву «L». Уголок алюминиевый может называться равнополочным, если ширина у обеих его полок одинаковая, или неравнополочным, если его полки имеют разную ширину. Угол в основании такого профиля, а также углы на краях его полок могут быть абсолютно прямыми или скругленными (это завит от технологии, с помощью которой он изготовлен). Основным способом производства уголка из алюминия является сгибание под прямым углом алюминиевой полосы, для чего применяется специальное оборудование.
На характеристики конечного изделия оказывают влияние химический состав и свойства материала, из которого оно изготовлено, а также технология его производства. В зависимости от назначения уголка из алюминия для его производства могут использоваться следующие материалы:
- А0, АД, АД31, АМг, АМц, Д16 (для профилей общего назначения);
- АД0, АД00, АД31, АД31Е, А7, А5Е (для профилей, используемых в производстве электротехнической продукции).

Геометрические параметры равнополочных и неравнополочных уголков могут варьироваться в следующих пределах:
- ширина полок: равнополочные изделия – 10–200 мм, неравнополочные – 6–265 мм;
- толщина стенок: равнополочные – 1–43 мм, неравнополочные – 1–66 мм.
Алюминиевые угловые профили могут не подвергать термической обработке, а могут отжигать их (тогда они станут мягкими) и закаливать. Такие изделия дополнительно обрабатывают и другими способами, а именно:
- покрывают их поверхность лакокрасочными материалами (Жл);
- используют электрофорез, чтобы нанести на их поверхность защитный слой (Жэ);
- применяют электролитическую обработку – анодирование (Ан);
- наносят на их поверхность полимерное покрытие порошковым методом (П);
- используют для защиты их поверхности комплексное двухслойное вещество (К).

Размеры алюминиевого уголка можно узнать по его маркировке, в которой может быть указана не только ширина полок, но и толщина металла, из которого он изготовлен. Например, маркировка 50х50 означает, что это равнополочный уголок, ширина каждой полки которого соответствует 50 мм, а обозначение 50х30х2 указывает на то, что это изделие с полками разной ширины (50 и 30 мм соответственно), изготовленное из металла толщиной 2 мм.
В соответствии с положениями ГОСТа 8617-81, алюминиевый профиль в виде уголка может поставляться заказчикам изделиями мерной, немерной длины и длины, которая кратна мерной.
Разновидностями алюминиевого уголка являются изделия с перфорированными и профилированными полками. Особенность перфорированного профиля заключается в том, что в его полках специально выполняются отверстия – перфорация. Профилированные изделия – это уголки, на кромках полок которых или в месте сгиба выполнены специальные подгибы. Это не декоративные элементы – они предназначены для того, чтобы изделие могло выполнять определенные функции.
Ознакомиться с требованиями ГОСТ к алюминиевым уголкам можно, скачав документ в формате pdf по ссылке ниже.

Преимущества использования
Алюминий является более пластичным материалом, чем сталь, поэтому изготавливать из него продукцию с определенным профилем поперечного сечения значительно проще. Уголки, выполненные из такого материала, отличаются следующими характеристиками:
- исключительно высокой устойчивостью к коррозии (отсюда – успешная и длительная эксплуатация в условиях повышенной влажности и воздействия агрессивных сред);
- оптимальным сочетанием небольшого веса, достаточно высокой прочности и жесткости, что позволяет таким изделиям выдерживать значительные нагрузки;
- способностью хорошо поддаваться термической и механической обработке, свариваться;
- легкостью монтажа;
- способностью принимать требуемую конфигурацию благодаря высокой пластичности алюминия;
- высокой тепло- и электропроводностью;
- способностью выдерживать без деформирования не только низкую и высокую температуру, но и резкую смену температурного режима (от –80 до +1000 Цельсия);
- легкостью в уходе (на гладкой поверхности алюминия не скапливается грязь);
- исключительно высокой декоративностью;
- пожарной безопасностью;
- экологической чистотой;
- возможностью подвергаться вторичной переработке, которая выполняется с небольшими финансовыми затратами;
- низкой ценой (алюминий является распространенным и, соответственно, недорогим цветным металлом, а затраты, понесенные на приобретение алюминиевых уголков, полностью компенсируются достойными характеристиками этой продукции).

Высокая коррозионная устойчивость (одно из основных достоинств алюминиевых угловых профилей) объясняется тем, что на поверхности алюминия при его взаимодействии с кислородом формируется защитная оксидная пленка. Несмотря на то, что такая пленка характеризуется отличными защитными свойствами, она легко повреждается при механическом воздействии на металл, так как толщина ее невелика. Чтобы обеспечить уголкам из алюминия еще более надежную защиту, на их поверхность наносятся дополнительные покрытия.
Надежное защитное покрытие требуемой толщины позволяет получить такая технологическая операция, как анодирование. Так называемый анодированный алюминий – это металл, на поверхности которого специально сформирована высокопрочная оксидная пленка, способная успешно противостоять даже значительным механическим воздействиям.

Такая пленка, кроме того, улучшает изоляционные характеристики алюминия, благодаря чему изделия из него не накапливают статического электричества (это является очень важным качеством для габаритных конструкций).
Для угловых алюминиевых профилей, если сравнивать их с аналогичными изделиями из других металлов, характерен ряд значимых преимуществ. По сравнению с медными, такие уголки отличаются значительно меньшим весом и более доступной стоимостью. Профили из обычной стали, хотя и стоят в разы дешевле алюминиевых, имеют больший вес и подвержены коррозионным процессам. Так же, как и алюминиевые, хорошо противостоят коррозии уголки из нержавеющей стали, но цены на такие изделия приблизительно одинаковы, а весит сталь значительно больше.
Классификация
Уголки, изготовленные из алюминия, сортамент которых определяется требованиями соответствующего нормативного документа, широко используются:
- для изготовления конструкций, которые одновременно должны отличаться высокой прочностью и незначительным весом;
- при производстве морских и речных судов;
- в автомобилестроительной промышленности;
- для сооружения ограждающих конструкций, которые, кроме прочности и устойчивости, должны отличаться хорошими декоративными характеристиками.

Из угловых алюминиевых профилей благодаря легкости их обработки производят опоры различного назначения, кронштейны, а также другие конструкционные элементы, которые должны быть легкими и одновременно прочными. Удобно и то, что прочность изделий, выполненных из таких уголков, можно увеличить, если подвергнуть их термической обработке. Значительно увеличить устойчивость подобных конструкций к воздействию агрессивных сред можно при помощи такой технологической операции, как анодирование.
РавнополочныеАлюминиевые уголки в зависимости от сферы применения, технологии производства и основных характеристик подразделяют на следующие категории.
Это угловые алюминиевые профили, отличающиеся одинаковой шириной полок. Такие уголки используют для изготовления облегченных конструкций, при производстве мебели, в качестве обкладочного материала, а также для решения многих других задач.
НеравнополочныеОтличительной особенностью таких изделий является то, что они способны сохранять свой профиль при выполнении изгиба. По этой причине такие алюминиевые профили идеально подходят для изготовления конструкций, отличающихся сложной геометрической формой.
ПрофилированныеЭти изделия используют преимущественно в качестве стыковочных элементов конструкций самого разного назначения.
ПерфорированныеУголки, на полках которых выполнена перфорация, применяются для облицовки поверхностей различного типа. Углы конструкций, облицованные при помощи таких профилей, не только отличаются правильной геометрической формой, но и надежно защищены от механических повреждений.
АнодированныеТакие алюминиевые изделия за счет специального покрытия, сформированного на их поверхности, отличаются высокой коррозионной устойчивостью, исключительной долговечностью, а также электроизоляционными свойствами. Уголки данного типа используются для создания конструкций, которые будут эксплуатироваться на открытом воздухе, в условиях агрессивного воздействия внешней среды.
ДекоративныеЭто уголки, которые отличаются привлекательным внешним видом. Они активно используются при производстве мебели и мебельной фурнитуры, других предметов интерьера, для крепления полок, зеркал и стекол, для решения других декоративных задач.

Основные сферы применения
Наиболее распространенными сферами применения алюминиевых уголков являются:
- возведение легких строительных конструкций: торговых павильонов, киосков, навесов и др.;
- создание быстровозводимых конструкций, не испытывающих в процессе эксплуатации серьезных нагрузок;
- возведение офисных и межкомнатных перегородок;
- выполнение ремонтно-отделочных работ;
- остекление и утепление лоджий и балконов, отделка фасадов зданий и других поверхностей;
- монтаж светопропускающих стен и крыш;
- производство рекламных конструкций, информационных стендов, вывесок и витрин;
- оборудование выставочных залов, декорирование помещений любого другого назначения;
- изготовление окон, дверей, мебели и бытовой техники;
- декоративная отделка дверных и оконных проемов;
- производство стыковочных деталей, направляющих, защитных элементов.

Государственный стандарт Союза ССР ГОСТ 18591-91
"ПРОФИЛИ АЛЮМИНИЕВЫЕ СПЕЦИАЛЬНЫЕ. СОРТАМЕНТ. ТЕХНИЧЕСКИЕ ТРЕБОВАНИЯ"
Aluminium special. Range of sizes
Взамен ГОСТ В 18591-73
Настоящий стандарт распространяется на профили из алюминия и алюминиевых сплавов марок АД1, Д1, АМ4, изготовляемых прессованием с последующим волочением или холодным выдавливанием.
Все требования стандарта являются обязательными.
1. Классификация
Профили подразделяют по:
форме изготовления (форма и размеры соответствуют определенному номеру профиля);
состоянию материала:
закаленные и естественно состаренные из алюминиевых сплавов марок Д1 и АМ4-Т;
нагартованные из алюминия марки АД1 и алюминиевого сплава марки Д1-Н.
2. Сортамент
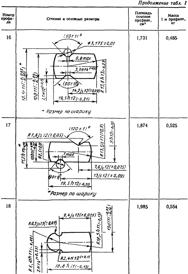
2.1. Номера профилей, основные размеры, параметры должны соответствовать приведенным в табл. 1.
2.2. Размеры профилей N 3-9 и их параметры должны соответствовать табл. 2.


Таблица 2
Размеры, мм
|
Номер профиля |
R, не более |
Площадь сечения профиля, см2 |
Масса 1 м профиля, кг |
||||
2.3. Размеры профилей N 10-12 и их параметры должны соответствовать табл. 3.
Таблица 3
Размеры, мм
|
Номер профиля |
Площадь сечения профиля, см2 |
Масса 1м профиля, кг |
|||||||
2.4. При вычислении массы 1 м профиля площадь поперечного сечения принимают по номинальному значению, а плотность материала принимают равной для:
алюминия марки АД1 - 2700 кг/м3;
алюминиевых сплавов марок Д1 и АМ4 - 2800 кг/м3.
2.5. Неуказанные радиусы закругления углов профилей должны быть не более 0, 5 мм.
2.6. Местная кривизна профилей не должна превышать 5 мм на 1 м длины.
Допускается по согласованию сторон профили изготовлять с местной кривизной не более 2 мм на 1 м длины.
2.7. Скручивание профилей вокруг продольной оси не должно превышать 5° на 1 м длины.
Допускается по согласованию сторон профили изготовлять с углом скручивания не более 2° на 1 м длины.
2.8. Профили, прессованные с последующим волочением, изготовляют немерной длины от 1, 5 до 3 м.
Допускаются в партии укороченные профили длиной не менее 0, 7 м в количестве 10% массы партии.
2.9. Длина профилей, изготовляемых холодным выдавливанием, устанавливается по согласованию сторон.
2.10. Профили должны быть обрезаны под прямым углом. Косина реза не должна превышать 3° и выводить профили за пределы сдаточной длины.
3. Технические требования
3.1. Профили должны изготовляться:
N 1 - из алюминия марки АД1 по ГОСТ 4784;
N 2-17 - из алюминиевого сплава марки Д1 по ГОСТ 4784;
N 18 - из алюминиевого сплава АМ4, химический состав которого должен соответствовать указанному в табл. 4.
Таблица 4
3.2. Профили N 1, 3, 5, 7, 13, 14, 16, 17 изготовляют холодным выдавливанием (х/в).
Допускается по согласованию сторон указанные профили изготовлять прессованием с последующим волочением.
Профили N 2, 4, 6-12, 15, 18 изготовляют прессованием с последующим волочением.
3.3. Механические свойства профилей:
временное сопротивление профилей, изготовляемых прессованием с последующим волочением, должно соответствовать указанному в табл. 5;
временное сопротивление профилей, изготовляемых холодным выдавливанием, устанавливается по согласованию сторон;
относительное удлинение и предел текучести устанавливаются по согласованию сторон.
Таблица 5
Примечание. Показатели временного сопротивления, определяемые на образцах, вырезанных из профилей, прошедших повторную закалку на предприятии-потребителе, могут быть на 19, 6 МПа (2 кгс/мм) меньше соответствующих показателей.
Примеры условного обозначения:
Профиль из сплава марки Д1, закаленного и естественно состаренного, N 13, полученного холодным выдавливанием:
Профиль Д1-Т-13-х/в - 18591-91
То же, из алюминия марки АД1, нагартованного, N 1, полученного холодным выдавливанием:
Профиль АД1-Н-1-х/в - 18591-91
То же, из сплава марки АМ4, закаленного и естественно состаренного, N 18, полученного прессованием с последующим волочением:
Профиль АМ4-Т-18 18591-91
3.4. На поверхности профилей не допускаются загрязнения, трещины, расслоения, неметаллические включения, пятна коррозионного происхождения.
3.5. На наружной поверхности профилей допускаются:
плены, забоины, вмятины, риски, точечные задиры, если глубина их залегания не выводит профиль за предельные отклонения по размерам.
Суммарная длина отрезков профиля с указанными дефектами не должна быть более 15% всей длины профиля:
забоины, раковины, царапины, риски, следы правки, с глубиной залегания, выводящей за предельные отклонения, если длина профиля с указанными дефектами не превышает 10 мм и количество таких отрезков будет не более двух на 1 м длины;
цвета побежалости, темные и светлые пятна и полосы, следы зачистки дефектов абразивным кругом в виде продольных и круговых рисок глубиной не более 0, 1 мм.
3.6. Параметр шероховатости профиля должен быть не более Rz 100 по ГОСТ 2789.
По требованию предприятия-потребителя профили поставляют с шероховатостью поверхности Ra 3, 2.
3.7. Макроструктура профилей не должна иметь трещин, утяжин и надрывов.
В инженерных конструкциях сталь применяют в виде прокат-ных изделий, получаемых с металлургических заводов и имеющих различную форму поперечного сечения.
Листовая сталь классифицируется следующим образом: тон-колистовая сталь, прокатываемая холодным и горячим способами; толстолистовая горячекатаная сталь; сталь широкополосная уни-версальная, которая благодаря прокату между четырьмя валками имеет ровные края, и сталь полосовая.
Уголковые профили (рисунки ниже) весьма широко применяют для образования несущих элементов, работающих на осевые силы, в качестве связующих элементов и различных конструктивных дета-лей. Более экономичны уголки с меньшими толщинами полок.
Прокатные стальные профили
Уголки бывают двух типов: равнополочные и неравнополочные.
Двутавры, используемые в инженерных конструкциях, прока-тываются двух типов: обыкновенные и широкополочные.
Балки двутавровые обыкновенные являются основным балочным профилем, применяются главным образом для элементов, работаю-щих на изгиб, чем и определяется их конфигурация (рисунок выше).
Балки двутавровые широкополочные высотой до 1000 мм име-ют параллельные грани полок (рисунок выше). Их выпускают трех ти-пов: нормальные двутавры (Б), широкополочные двутавры (Ш) и колонные двутавры (К). Из широкополочных двутавров путем разрезки стенки в продольном направлении получают тавровые профили.
Швеллер отличается от двутавра сдвинутой к краю полок стенкой. Он прокатывается двух типов с уклоном внутренних граней полок (рисунок выше) и с параллельными гранями полок.
Кроме перечисленных основных профилей в инженерных кон-струкциях применяют сталь квадратную; сталь круглую; гнутые про-фили (рисунок ниже), а также ряд других профилей.
Сложные составные профили, замененные гнутыми

а — закладные части и облицовка пазов гидротехнических затворов;
6 — закладные части обратного пути гидротехнического затвора; в — ветвь колонны промышленного здания
ГОСУДАРСТВЕННЫЙ СТАНДАРТ СОЮЗА ССР
ПРОФИЛИ
ПРЕССОВАННЫЕ
ИЗ АЛЮМИНИЯ
И АЛЮМИНИЕВЫХ СПЛАВОВ
ТЕХНИЧЕСКИЕ УСЛОВИЯ
ГОСТ
8617-81
(СТ СЭВ 3843-82 , СТ
СЭВ 3844-82)
ИПК ИЗДАТЕЛЬСТВО СТАНДАР ТОВ
Москва
ГОСУДАРСТВЕННЫЙ СТАНДАРТ СОЮЗА ССР
Дата в ведени я 01 .01 .83
Настоящий стандарт распространяется на прессованные профили из алюминия и алюми н иевых сплавов, предназначенные для нужд наро дного хозяйства и для экспорта. 2 , 3).
1. КЛАССИФИКАЦИЯ
1 .1 . Профили подразделяют: по тип у: сплошные площадью поперечного сечения до 200 см 2 и диаметром описанной окружности до 350 мм; полые площадью поперечного сечения до 60 см 2 и диаметром о писанной окружности до 250 мм; по сост о яни ю материала: без термической обработки (го рячепрессов анные) - обоз начаются маркой алюминия или алюминиевого сплава без дополнительных знаков; отожжен н ые - М; закаленные и естественно состаренные - Т; закаленные и искусственно состаренные - Т1 ; неполн о стью закаленные и и скусственно состаренные - Т5 ; по виду прочнос ти: нормальной прочности - обозначаются маркой сплава и состояния материала без дополн и тель ных зн аков; повышенной прочности - П П. Профили в закаленном и естественно или искусственно состаренном состоянии из сплавов марок АВ, Д 1 , Д16 , АК4 , АК6 , 1915 , 1925 изготавливают с максимальной толщиной полок и стенок не более 150 мм, из сплава марки В95 - не более 125 мм, из сплавов марок АД31 , АД33 , АД35 , 1925 С, 1935 , ВД1 , АВД1 , АК М - не более 100 мм. по назначению: общего назначен и я - из алюминия марок А6 , А5 , А0, АД0 , АД1 , АД С, АД и алюминиевых сплавов марок АМ ц, АМц С, АМ г2 , АМг3, АМг3С, АМг5 , АМг 6, АД31 , АД33, АД35 , АВ, Д1 , Д16 , АК4 , АК6 , В95 , 1915 , 1925 , 1925 С, ВД1 , АВД1 , АКМ; электротехнического назначения - из алюминия марок АД0, А Д 00, А7 , А6 , А5 , А5 Е и алюминиевых сплавов марок АД31 , АД31 Е. Примечание. В условном обозначении профилей электротехнического н аз начения дополнительно указываются буквы ЭН, которые ставят после номера или шифра профиля 440361 ЭН (ПК 0018 ЭН). (Измененная редакция, Изм. № 2 , 3). 1 .2 . Номер или шифр, длину, назначение профилей, состояние материала и прочность указывают в заказе. При отсутствии требования о назначен и и профилей их изготавливают как профили общего назначения. 3).2. СОРТАМЕНТ
2 .1. Форма и размеры профилей, площади сечен ий, диаметры описанной окружности и теоретическая масса 1 м длины - по ГОСТ 13616-78 , ГОСТ 13617-82 , ГОСТ 13618-81 , ГОСТ 13619-81 , ГОСТ 13620-90 , ГОСТ 13621-90 , ГОСТ 13622-91 , ГОСТ 13623-90 , ГОСТ 13624-90 , ГОСТ 13737-90 , ГОСТ 13738-91 , ГОСТ 17575-90 , ГОСТ 17576-81 и чертежам, согласованным изготовителем с потребителем. Примечание. Для профилей, подлежащих механической обработке, в чертеже указываетс я контур (контуры) чистовой детали с указанием чистовых размеров и привязки контура чистовой детали к контуру профиля. (Измененная редакция, Изм. № 1 , 2). 2 .2 . Предельные отклонения по толщине полок S и другим размерам поперечного сечения а (черт. 1 - 3) и а" (черт . 4 - 5 ), охватывающих монолитный металл профилей , должны соответствовать : для профилей из алюминия и алюминиевых сплавов, за исключением сплавов марок АМг5 и АМг6 , - значени ям, указанн ым в табл. 1; для профилей из алюминиев ы х сплавов марок АМ г5 и АМг 6 - значениям, указанным в таб л. 2 или на чертежах. (Измененная редакция, Изм. № 1, 3).
Черт. 1

Черт. 2

Черт. 3
2 .3 . Предельные отклонения по толщине стенок ( S 1), образующих полые пространства (черт. 4, 5), должны соответствовать значениям, указанным в табл. 1 или 2 с коэффициентом 1,5 или на чертежах. (Измененная редакция, Изм. № 1).

Черт. 4

Черт. 5
(Измененная редакция, Изм. № 1). 2.3 а. Допускается увеличение предельных минусовых отклонений не более чем в 2,5 раза на размеры поперечного сечения или отдельные элементы профилей, подвергаемые у потребителя механической обработке с учетом припуска на механическую обработку, которые должны быть указаны в чертежах. (Введен дополнительно, Изм. № 2). 2 .4 , 2 .5 . (Исключены, Изм. № 1).Черт. 6 - 9 .
(Исключены, Изм. № 1).Т аблица 1
|
Номинальный размер поперечного сечения профиля |
Предельное отк л онен ие размеров поперечн ого сечения профиля п ри диаметре описанной окружности |
|||||||
|
Св. 30 ,0 до 60 ,0 |
Св. 60 ,0 до 100 ,0 |
Св. 100 ,0 до 150 ,0 |
Св. 150 ,0 до 200 ,0 |
С в. 200 ,0 до 250 ,0 |
Св. 250 ,0 до 300 ,0 |
Св. 300 ,0 до 350 ,0 |
||
| До 1,5 вклю ч. | ||||||||
| Св. 1, 5 до 3,0 включ. | ||||||||
| " 3 ,0 " 6 ,0 " | ||||||||
| " 6 ,0 " 10 ,0 " | ||||||||
| " 10 ,0 " 15 ,0 " | ||||||||
| " 15 ,0 " 30 ,0 " | ||||||||
| " 30 ,0 " 50 ,0 " | ||||||||
| " 50 ,0 " 75 ,0 " | ||||||||
| " 75 ,0 " 100 ,0 " | ||||||||
| " 100 ,0 " 150 ,0 " | ||||||||
| " 150 ,0 " 200 ,0 " | ||||||||
| " 200 ,0 " 250 ,0 " | ||||||||
| " 250 ,0 " 300 ,0 " |
± 2,00 |
|||||||
| " 300 ,0 " 350 ,0 " | ||||||||
Таблица 2
|
Номинальный размер попереч н ого сечения профиля |
Предельное отклонение размеров поперечного сечения профиля при диаметре описанной окружности |
|||||||
|
Св. 30 ,0 до 60 ,0 |
Св. 60 ,0 до 100 ,0 |
Св. 100 ,0 до 150 ,0 |
Св. 150 ,0 до 200 ,0 |
Св. 200 ,0 до 250 ,0 |
Св. 250 ,0 до 300 ,0 |
Св. 300 ,0 до 350 ,0 |
||
| До 1 ,5 вклю ч. | ||||||||
| Св. 1,5 до 3 ,0 вклю ч. | ||||||||
| " 3 ,0 " 6 ,0 " | ||||||||
| " 6 ,0 " 10 ,0 " | ||||||||
| " 10 ,0 " 15 ,0 " | ||||||||
| " 15 ,0 " 30 ,0 " | ||||||||
| " 30 ,0 " 50 ,0 " | ||||||||
| " 50 ,0 " 75 ,0 " | ||||||||
| " 75 ,0 " 100 ,0 " | ||||||||
| " 100 ,0 " 150 ,0 " | ||||||||
| " 150 ,0 " 200 ,0 " | ||||||||
| " 200 ,0 " 250 ,0 " | ||||||||
| " 250 ,0 " 300 ,0 " | ||||||||
| " 300 ,0 " 350 ,0 " | ||||||||




2 .7 . Величину радиусов скругления углов, если они не указаны на чертежах, устанавливают: не более 0 ,5 мм при толщине полки и стенки до 3 мм вклю ч. " " 0 ,6 мм " " " " св. 3 до 6 мм включ; " " 0 ,8 мм " " " 6 " 10 мм " " " 1 ,0 мм " " " " " 10 " 18 мм " " " 1 ,2 мм " " " " " 18 " 30 мм " " " 1 ,6 мм " " " " " 30 " 50 мм " " " 2 ,0 мм " " " " " 50 мм. В местах сопряжения полок и стенок различной толщины определение допустимого радиуса скругления проводят по большей толщине. (Измененная редакция, Изм. № 1). 2 .7 .1 . Предельные отклонения по размерам радиусных или цилиндрических поверхностей, если они не указаны в чертежах, не должны превышать ±10 % от величины радиуса, но не менее ±0 ,5 мм. (Измененная редакция, Изм. № 2). 2 .7 .2 . Величина притупления острых кромок допускается: до 0 ,3 мм при толщине полки или стенки до 3 мм включ.; " 0 ,5 мм " " " св. 3 до 15 мм вкл юч.; " 1 ,0 мм " " " св. 15 мм " (Измененная редакция, Изм. № 2). 2 .7 .3 . Радиусы скругления углов и притупления острых кромок величиной до 1 ,0 мм обеспечиваются технологией изготовления. (Измененная редакция, Изм. № 2). 2 .8 . Угол скручивания вокруг продольной оси на 1 м длины любого участка профиля не должен превышать: 3 ° - при ширине базовой поверхности до 50 мм; 2 ° - при ширине базовой поверхности св. 50 до 200 мм; 1 ° - при ширине базовой поверхности св. 200 до 350 мм. 2 .8 .1 . В договорно-правовых отношениях скручивание профиля не должно быть более значений, указанных в табл. 3а.
Таблица 3а*
|
Диаметр описанной окружности |
Допускаемое скручивание, не более |
|
|
н а длину профиля до 6 м |
||
| До 20 включ. | ||
| Св. 20 до 40 включ. | ||
| " 40 " 80 " | ||
| " 80 " 120 " | ||
| " 120 " 200 " | ||
| " 200 | ||
Т а блица 4 *
* Таблица 5 исключена. 2 .10 . Профили должны быть прямыми. Продольное плавное отклонение от прямолинейности относительно любой плоскости на любом участке длиной 1 м, за исключением профилей, имеющих буль бу или хотя бы один клиновидный элемент, не должно превышать: 4 мм - на профилях с толщиной полок или стенок св. 4 до 10 мм включите льно; 3 мм - на профилях толщиной полок или стенок свыше 10 мм. На профилях, имеющих бульбу или хотя бы один клинов и дный элемент, с толщиной полки свыше 4 мм отклонение от прямолинейности относительно любой плоскости на любом участке профиля длиной 1 м не должно пре вышать 4 мм. По требованию потребителя на профилях с толщиной полок и стенок свыше 4 до 10 мм отклонение от прямолинейности не должно превышать 3 мм. (Измененная редакция, Изм. № 1). 2 .11 . На профилях с толщиной полок до 4 мм вклю чительно, в том числе на профилях, имеющих бульбу или хотя бы один клиновидный элемент, допускается продольное отклонение от прямолинейности на 1 м длины, устраняемое путем приложения усилия не более 50 Н (5 кгс) на профиль, установленный на плоской плите. (Измененная редакция, Изм. № 1). 2.12 . Общие допускаемые продольные отклонения от прямолинейности, скручивание профиля не должны превышать произведения допускаемого отклонения от прямолинейности, скручивания на 1 м на длину профиля в метрах. (Измененная редакция, Изм. № 1). 2 .13 . На профилях допускается плавная волнистость с высотой волны не более 1 мм, а на профилях, имеющих бульбу или хотя бы один клиновидный элемент - не более 2 мм. Количество таких волнистых мест не должно быть более одного на 1 м длины профиля. Волнистость с высотой волны до 0 ,2 мм не лимитируется. 2 .14 . Поперечное плавное отклонение от плоскостности (выпуклость и вогнутость) е профилей, характерные формы поперечного сечения которых приведены на черт. 14 - 18, не должно превышать: 1 % от ширины полки - для сплошных профилей; 2 % от ширины полки или ширины стенки - для полых профилей, но не менее 0 ,3 мм. По требованию потребителя на полых профилях поперечное отклонение от плоскостности не должно превышать 1 ,5 % .
Черт. 14

Черт. 15

Черт. 16

Черт. 17

Черт. 18
(Измененная редакция, Изм. № 1) . 2 .15 . (Исключен, Изм. № 1). 2 .16 . Профили изготовляют длиной: от 1 до 6 м - при площади поперечного сечения до 0 ,8 см 2 ; от 1 до 8 м - при площади поперечного сечения св. 0 ,8 до 1 ,5 см 2 ; от 1 до 10 м - при площади поперечного сечения св. 1,5 до 200 см 2 . Профили с площадью поперечного сечения до 1,5 см из алюминия и алюминиевых сплавов марок АМц и АМцС изготовляют длиной до 3 м. 2 .16 .1 . Профили изготовляют немерной, мерной или кратной мерной длины в пределах размеров, указанных в п. 2.16. 2 .16 .2 . Профили кратной мерной длины должны изготовлять с учетом припуска на каждый рез 5 мм. (Измененная редакция, Изм. № 1). 2 .17 . Предельные отклонения по длине профилей мерной и кратной мерной длины до 6 м не должны превышать: + 10 мм - для профилей с диаметром описанной окружности до 150 мм включительно; + 15 мм - для профилей с диаметром описанной окружности свыше 150 мм. Предельные отклонения по длине профилей мерной и кратной мерной длины свыше 6 м не должны превышать +20 мм. (Измененная редакция, Изм. № 1). 2 .18 . Профили должны быть обрезаны под прямым углом. Косина реза не должна превышать 3 ° и выводить профили за пределы сдаточной длины. 2 .19 . Предельные отклонения отдельных размеров элементов профилей, не предусмотренные настоящим стандартом, в том числе предельные отклонения размеров полости, при необходимости должны быть указаны в согласованных изготовителем с потребителем чертежах. 2 .20 . Предельные отклонения размеров поперечного сечения, углы скручивания и отклонение от прямолинейности профилей, с резко выраженным неравномерным сечением или профилей с соотношением толщины полок более 4:1, указывают в согласованн ых изготовителем с потребителем чертежах. Примеры условных обозначений Профиль из сплава марки Д 16 , в закаленном и естественно состар енном состоянии (Т), нормальной прочности, фасонного сечения (номер или шифр профиля), длиной 3000 мм: Профиль Д 16 .Т (номер или шифр)×3000 ГОСТ 8617-81 . То же, повышенной прочности (П П) , немерной длины: Профиль Д 16 .Т.ПП (номер или шифр) ГОСТ 8617-81 . Профиль из сплава марки А Д31, в закаленном и естественно состаренном состоянии (Т), нормальной прочности, таврового сечения с номером 420019 по ГОСТ 13622-79 , немерной длины: Профиль (или Тавр) А Д31 .Т 420019 ГОСТ 8617-81 /ГО СТ 13622-79 . То же, длиной кратной (КД) 2000 мм: Профиль (или Тавр) А Д31 .Т 420019×2000 КД ГОСТ 8617-81 /ГОСТ 13622-79 . Профили электротехнического назначения из алюминиевого спла в а марки АД31 , в закаленном и искусственно состаренном состояния (Т1), фасонного сечения, длиной кратной (КД) 2000 мм: Профиль АД31.Т1 (номер профиля) ЭН×2000 КД ГОСТ 8617-81 . Допускается в заказе ссылку на стандарты с размерами профилей не указывать. (Измененная редакция, Изм. № 1 , 2 , 3).3. ТЕХНИЧЕСКИЕ ТРЕБОВАНИЯ
3 .1 , Профили изготовляют в соответствии с требованиями настоящего стандарта по технологическому регламенту, ут вержд енному в установленн ом порядке. (Измененная редакция, Изм. № 3). 3 .1 .1 . Профили общего назначения изготовляют из алюминия марок А6 , А5 , А0 с химическим составом по ГОСТ 11069-74 , алюминия марок А Д 0, АД1, АДС, АД и алюминиевых сплавов марок АМц, АМцС, АМг2 , АМг3, АМг3С, АМг5 , АМг6 , АД31 , АД33 , АД35 , АВ, Д1 , Д16, АК4, АК6 , В95 , 1915 , 1925 , 1925 С с химическим составом по ГОСТ 4784-74 ; из алюминиевых сплавов марок ВД 1 , АВД1 и АКМ с химическим составом по ГОСТ 1131-76 ; из алюминиевого сплава марки 1935 с хими ческим составом по нормативно-технической документации. Профили электротехнического назначения изготовляют из алюминия марок А 7 , А6 , А5 , А5 Е с химическим составом по ГОСТ 11069-74, алюминия марок АД00 , АД0 и алюминиевого сплава марки АД31 с химическим составом по ГОСТ 4784-74 и марки АД31 Е с химическим составом по ОСТ 192014-76 . (Введен дополнительно , Изм. № 3). 3 .2 . Механические свойства профилей нормальной прочности при растяжении должны соответствовать величинам, указанным в табл. 6. (Измененная редакция, Изм. № 1 , 2).Таблица 6
|
Марка сплава |
Состояние материала профилей при изгот о влении |
Состояние материала образцов при испытании |
Толщина полки и л и стенки, мм |
Временное сопротивление σ в, МП а (кгс /мм 2) |
Относительное уд л инение |
|
| А 7 А 6 А 5 А5Е А0 А Д00 А Д0 А Д1 АД | Без термической обработки | Все размеры | ||||
| А Д С | Без термической обработки | Без термической обработки | Все размеры | |||
| А Мц А Мц С | Без термической обработки | Без термической обработки | Все размеры | |||
| А Мг2 | Без термической обработки Отожжен н ое | Все размеры |
Не более 225 (23 ,0) |
|||
| А Мг 3 | Без термической обработки Отожженное | Без термической обработки Отожженное | Все размеры | |||
| А Мг 3С | Без термической обработки | Без термической обработки | Все размеры | |||
| А Мг5 | Без термической обр аботки Ото жженно е | Без термической обработки Отожженное | Все размеры | |||
| А Мг6 | Без термической обработки Отожженное | Без термической обработки Отожженное | Все размеры | |||
| А Д31 А Д31 Е | Без термической обработки | Все размеры | ||||
| То же | До 100 вклю ч. | |||||
| Закале н ное и искусственно состаренное | До 100 включ. | |||||
| Неполност ью закаленное и искусственно состаренное | Неполностью закаленные и искусственно состаренные | До 100 включ. | ||||
| А Д 33 | Без термической обработки | Все размеры | ||||
| Закаленное и естественно сост а ренное | То же | До 100 включ. | ||||
| Закаленные и искусственно состаренные | До 10 включ. | |||||
| Св. 10 до 100 включ. | ||||||
| А Д35 | Б ез термической обработки | Закаленные и естествен н о состаренные | Все размеры | |||
| Закаленное и естественно состаренное | То же | До 100 вклю ч. | ||||
| Закаленные и искусственно состаренные | До 100 включ. | |||||
| АВ | Без термической обработки | Закаленные и естественно состаренные | Вс е размеры | |||
| Закаленное и естественно состаренное | То ж е | До 150 включ. | ||||
| Закаленное и ис к усственно состаренное | Закаленные, и иск усственно состаренные | До 150 включ. | ||||
| Д1 | Без термической обработки | За к аленные и естественно состаренн ые | До 10 включ. | |||
| Св. 10 до 20 включ. | ||||||
| Отожженное | Отожженные | Св. 20 | ||||
| Все размеры |
Не более 245 (25 ,0) |
|||||
| Закале нн ое и естественно состаренное | Закален н ые и естественно состаренные | До 10 вклю ч. | ||||
| Св. 10 до 20 включ. | ||||||
| Св. 20 до 150 включ. | ||||||
| Д 16 | Без термической обработки | Закаленные и естественно сост а ренные | До 5 включ. | |||
| Св. 5 до 10 включ. | ||||||
| Св. 10 | ||||||
| Отожженное | Отожженные | Все размеры |
Не более 245 (25 ,0) |
|||
| Закаленное и естественно состаренное | Закаленные и естес т венно состаренные | До 5 включ. | ||||
| Св. 5 до 10 включ. | ||||||
| Св. 10 до 150 включ. | ||||||
| В 95 | Без термической обработки | Закал е нные и и скусствен но состаренные | До 10 включ. | |||
| Св. 10 | ||||||
| Отожженное | Отожженные | Все размеры |
Не более 275 (28 ,0) |
|||
| Закаленное и искусственно состаренное | Закаленные и искусственно состаренные | До 10 включ. | ||||
| Св. 10 до 125 включ. | ||||||
| А К 6 | Закаленные и искусственно состаренные | Все размеры | ||||
| Закаленное и естественно состаренное | То же | До 150 вкл юч. | ||||
| Закаленное и искусственно состаренное | До 150 включ. | |||||
| 1915 | Без термической обработки | Горячепрессова нны е с естественным старением в течение 30 - 35 сут | До 12 включ. | |||
| Без термической обработки | Горячепрессованные с естественным старением в течение 2 - 4 сут | До 12 включ. | ||||
| Отожженное | Отожженные | Все размеры |
Не более 277 (28 ,0) |
|||
| Зак а ленное и естественно состаренное | Закаленные и естественно состаре н ные в течение 30 - 35 сут | До 150 включ. | ||||
| Закаленное и естественно состаренное | Закаленные и ес т ественно состаренные в течение 2 - 4 сут | До 150 включ. | ||||
| Закаленное к естественно состаренное | Закаленные и искусст в енно состаренные | Св 12 до 150 включ. | ||||
| 1925 | Без термической обработки | Горячепрессо в анные с естественным старением в течение 30 - 35 сут | До 12 вклю ч. | |||
| Без термической обработ к и | Горячепрессованные с естественным старением в течение 2 - 4 сут | До 12 включ. | ||||
| Отожженное | Отожженные | Все размеры |
Не более 294 (30 ,0) |
|||
| Закаленное и естественно состаренное | Св. 12 до 150 включ. | |||||
| Закаленное и естественно состаренное | Закаленные и естественно состаренные в течение 2 - 4 сут | До 150 включ. | ||||
| 1925 С | Закаленное и естес т венно состаренное | Закаленные и естественно состаренные в течение 30 - 35 сут | До 100 включ. | |||
| 1935 | Без термичес к ой обр аботки | Естест в енно состаренное в течение 30 - 35 сут | До 10 включ. | |||
| В ез терми ческ ой обработки | Е ст ественно состаренное в течение 2 - 4 сут | До 10 включ. | ||||
| Закаленное и естественно состаренное | Закаленное и естественно состаренное в течение 30 - 35 сут | До 100 вклю ч. | ||||
| Закаленное и естественно состаренное | Закаленное и естественно состаренное в течение 2 - 4 сут | До 100 включ. | ||||
| ВД 1 | Без термической обработки | Закаленные и естественно состаренные | Все размеры | |||
| Закаленное и естественно состаренное | То же | До 100 включ. | ||||
| А В Д1-1 | Без термической обработки | Закаленные и естественно состаренные | Все размеры | |||
| Закаленное и естественно состаренное | То же | До 100 включ. | ||||
| А КМ | Без термической обработки | Закаленные и естественно состаренные | Все размеры | |||
| Закаленные и искусственно состаренные | Все размеры | |||||
| Отожженное | Отожженные | Все размеры |
Не более 196 (20 ,0) |
|||
| Закаленное и естествен н о состаренное | Закаленные и естестве н но состаренные | До 100 включ. | ||||
| А К4 | Без термической обработки | Закаленные и искусственно состаренные | Все размеры | |||
| Закаленное и естественно состаренное | До 150 вкл юч. | |||||
| Закаленное и искусственно состаренное | ||||||
| Примечания: 1 . Механические свойства профилей любого состояния материала из алюминия марок А7 , А6 , А5 , А5 Е, А0, АД00 , АД0 , АД, АД С, АД1 и алюминиевых сплавов марок АМц, АМц С, АМ г2 , АМг 3, АД31 , АД31 Е, АД33, АД35 , АВ, Д1 , 1925 , ВД1 , АВ Д1-1 и АК М, а также показатели механическ их свойств профилей без термической обработки и в отожженном состоянии из алюминиевых сплавов марок Д16 , В95 , 1915 и 1935 обеспечиваются технологией изготовления. 2 . По требованию потребителя нормы относительного удлинения профилей из сплава марки АМ г2 должны быть не менее 15 % . | ||||||
Таблица 7
|
Марка сплава |
Состояние материала профилей |
Состояние испытываемых образцов |
Толщина п о лки или стенки, мм |
Време н ное сопротивление σ в , МП а (кгс /мм 2) |
Предел текучести σ 0,2 , МПа (кгс /мм 2) |
Относительное удлинение |
| Без термической обработки | Закаленные и естественно состаренные | До 10 вкл юч. | ||||
| Св. 10 до 20 включ. | ||||||
| Св. 20 | ||||||
| Закаленное и естественно состаренное | То же | До 10 включ. | ||||
| Св. 10 до 20 включ. | ||||||
| Св. 20 до 150 включ. | ||||||
| Без термической обработки | Закаленные и естественно состаренные | До 5 включ. | ||||
| Св. 5 до 10 включ. | ||||||
| Св. 10 до 20 " | ||||||
| Св. 20 до 40 " | ||||||
| Св. 40 до 80 " | ||||||
| Св. 80 | ||||||
| Закаленное и естественно состаренное | То же | До 2 включ. | ||||
| Св. 2 до 10 включ. | ||||||
| Св. 10 до 20 включ. | ||||||
| Св. 20 до 40 " | ||||||
| Св. 40 до 80 " | ||||||
| Св. 80 до 150 " | ||||||
| Без термичес к ой обработки | Закаленное и искусственно состаренное | До 5 вкл юч. | ||||
| Св. 5 до 10 включ. | ||||||
| Св. 10 до 75 " | ||||||
| Св. 75 до 112 " | ||||||
| С в. 112 до 125 " | ||||||
| Закаленное и искусствен н о состаренное | То же | До 5 включ. | ||||
| Св. 5 до 10 включ. | ||||||
| Св. 10 до 75 " | ||||||
| Св. 75 до 125 " | ||||||

Профессия директор по развитию Должностные обязанности директора по региональному развитию
Курсовая работа: Ликвидность и платежеспособность предприятия, методы оценки и управления
Использование показателей логистической деятельности
Понятие и элементы логистического процесса
Должностная инструкция начальника участка автотранспорта Должностная инструкция начальника транспортного упаковочного цеха